or
owners manual Nissan GT-R
owners manual Nissan GT-R - year of production: 2007 - Nissan GTR R32 workshop service manual EN
Document:
pdf (24.14 MB) 804 pages
all ratings: 0
average rating: 5

Download PDF
Click here to download a pdf file with an instruction manual for Nissan GT-R
year of production from: 2007

Do you prefer pdf format?
Find out how to download
Enter the code to download PDF file:
All pages in one PDF file!
How to get the code?
It's very simple! Just pay through a secure PayPal payment.
It will take no longer than a few minutes.
You will receive the code immediately after payment.
The code will be displayed on the screen and will be sent to you by e-mail address.
:
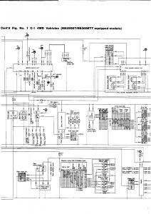
Nissan GTR R32 workshop service manual
pages 778 - 784
Nissan GTR R32 workshop service manual
page 781 / 804
this site is maintained by advertising - for view instructions, turn off ad blocking in your browser

Download PDF
Other available language versions of this manual:
Nissan GT R manuel du proprietaire FR
show the owner's manual

pdf - 5.67 MB